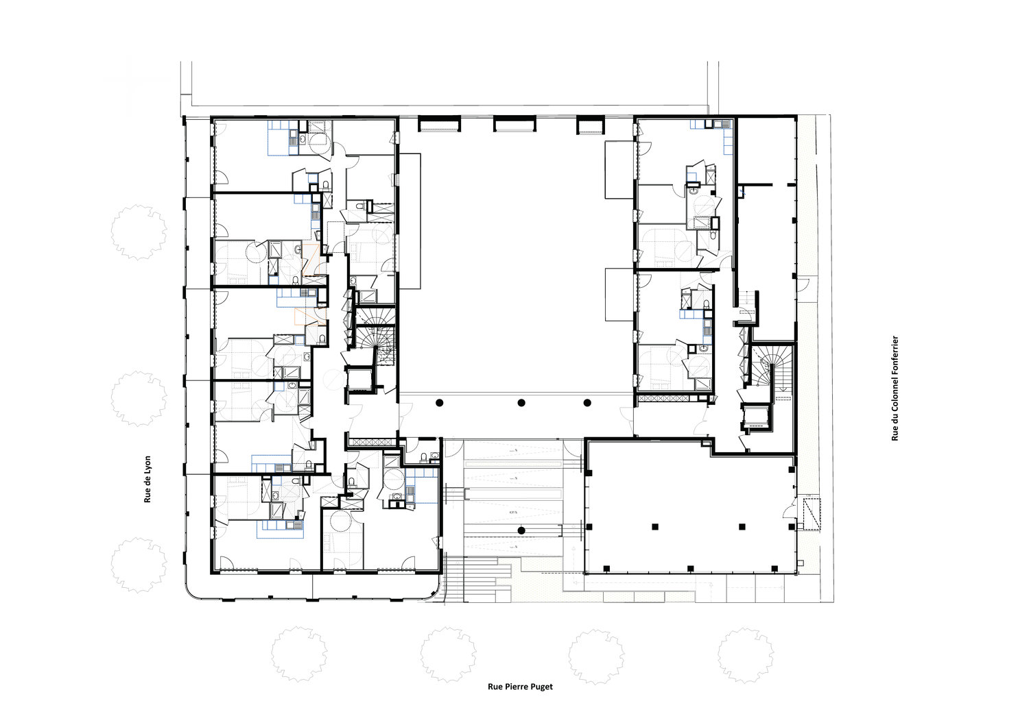
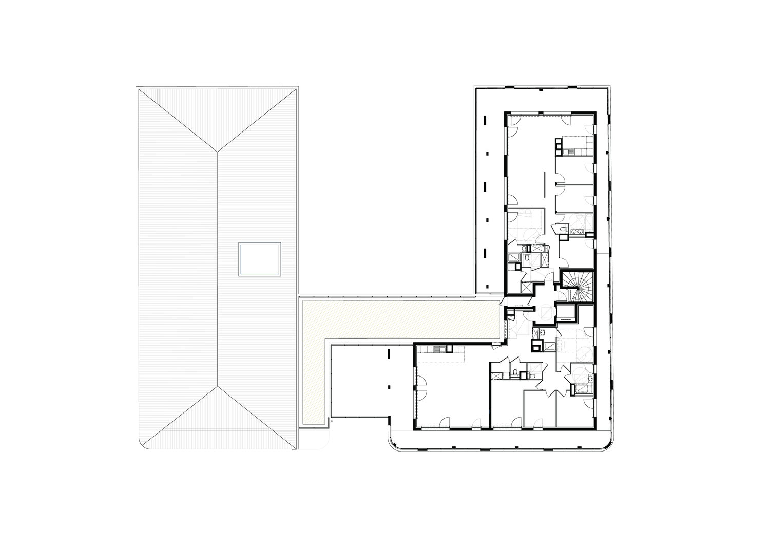
46 logements + activités BREST
46 logements + activités BREST
lieu : BREST (29)
maitre d’ouvrage : Pierre promotion + Kerim Promotion + Brest Métropole Habitat
livraison : 2024
surface : 3 716 m² SP logements
programme : 46 logements accession + 2 cellules d’activités
équipe : mandataire ALTA + Ingetec Bretagne + Structure B + Solab
photos ©E. SUEUR
Projets récents

Ecole entre bois et rivière L’Huisserie
Ecole entre bois et rivière L’Huisserie

59 logements SITE SNSM SAINT-MALO
59 logements SITE SNSM SAINT-MALO

Ensemble tertiaire Zac Atalante Champeaux RENNES
Ensemble tertiaire Zac Atalante Champeaux RENNES

Rénovation thermique et optimisation énergétique Piscine de Bréquigny Rennes
Rénovation thermique et optimisation énergétique Piscine de Bréquigny Rennes

68 logements et commerces malakoff
68 logements et commerces malakoff

128 logements + 14 maisons sainte-claire vannes
128 logements + 14 maisons sainte-claire vannes

16 Logements Saint-Jacques-de-la-lande
16 Logements Saint-Jacques-de-la-lande

Résidence jeunes actifs + 30 Logements RENNES
Résidence jeunes actifs + 30 Logements RENNES

hall 9 musikhall parc expo bruz
hall 9 musikhall parc expo bruz

44 logements individuels montval sur loir
44 logements individuels montval sur loir

Ensemble tertiaire bois harel rennes st-jacques-de-la-lande
Ensemble tertiaire bois harel rennes st-jacques-de-la-lande

87 Logements et activités zac bodélio lot E1 lorient
87 Logements et activités zac bodélio lot E1 lorient

Ensemble mixte îlot o2 baud chardonnet rennes















