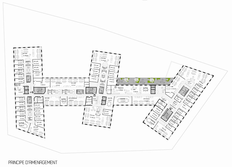
ORANGE LABS Atalante cesson-sévigné
lieu : Viasilva, Cesson-Sévigné (35)
maitre d’ouvrage : GIBOIRE + ARC + LAMOTTE
client : ORANGE
date : concours 2015
surface : 16 500 m² SP
programme : bureaux + espaces de convivialité + cafétéria + amphithéâtre+ 2 niveaux de PK
équipe : mandataire ALTA (Chef de projet : A. Plantady LINE UP) + SNC Lavalin
©ALTA ©SLANN
Projets récents

Histoire(s) de territoire – l’architecture d’aujourd’hui – hors-série n°51
Histoire(s) de territoire – l’architecture d’aujourd’hui – hors-série n°51

résidence étudiante + 37 logements + activités rennes
résidence étudiante + 37 logements + activités rennes

Carte blanche à Eric Sueur le Sébastopol à Rennes
Carte blanche à Eric Sueur le Sébastopol à Rennes

Ecole entre bois et rivière L’Huisserie
Ecole entre bois et rivière L’Huisserie

59 logements SITE SNSM SAINT-MALO
59 logements SITE SNSM SAINT-MALO

Ensemble tertiaire Zac Atalante Champeaux RENNES
Ensemble tertiaire Zac Atalante Champeaux RENNES

Rénovation thermique et optimisation énergétique Piscine de Bréquigny Rennes
Rénovation thermique et optimisation énergétique Piscine de Bréquigny Rennes

68 logements et commerces malakoff
68 logements et commerces malakoff

125 logements sainte-claire vannes
125 logements sainte-claire vannes

16 Logements Saint-Jacques-de-la-lande
16 Logements Saint-Jacques-de-la-lande

Résidence jeunes actifs + 30 Logements RENNES
Résidence jeunes actifs + 30 Logements RENNES

hall 9 musikhall parc expo bruz
hall 9 musikhall parc expo bruz

44 logements individuels montval sur loir










