ensemble tertiaire îlot Trigone ZAC EURORENNES RENNES
ensemble tertiaire îlot Trigone ZAC EURORENNES RENNES
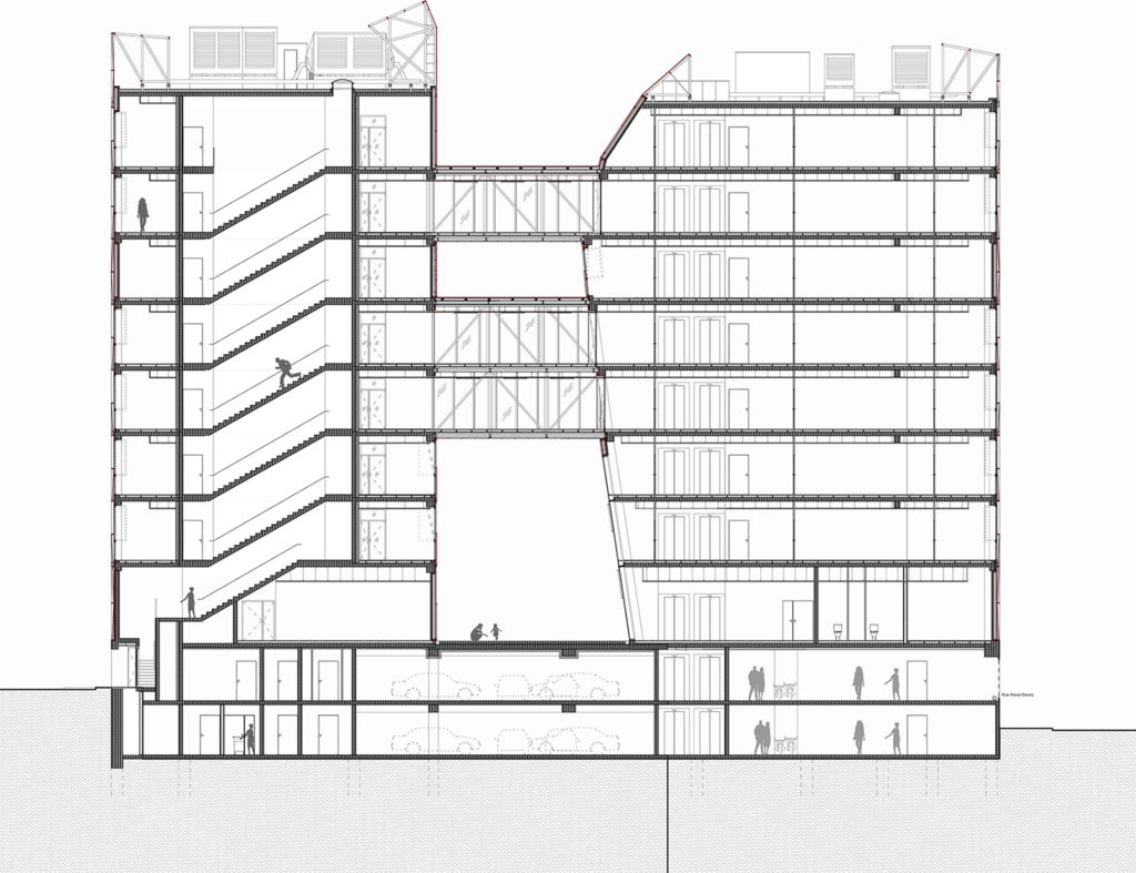
lieu : Ilot Trigone ZAC EURORENNES, RENNES (35)
maitre d’ouvrage : ICADE + POSTE IMMO
aménageur : Territoires
urbaniste : FGP – French Global Project – Gazeau – Paillard
livraison : 2019
surface : 13 700 m² SP bureaux + 300 m² SP commerces
programme : bureaux + activités + 2 niveaux de PK
équipe : ALTA + Hamonic + Masson (mandataire)
+ BETOM + JP Lamoureux
©Hamonic + Masson ©ALTA
photos : ©T. Shimmura ©S. Chalmeau
Projets récents




























































